Villa ST15

Diese Villa ist nicht nur ein Haus, sondern ein Ort, der Lebensqualität, Komfort und Luxus vereint. Hier am Eichberg in der Gemeinde Stattegg können Sie das Leben in all seinen Zügen genießen und Ihren persönlichen Rückzugsort inmitten einer idyllischen Umgebung finden.

Die Villa teilt sich wie folgt auf:

Untergeschoss:

Hier befinden sich, ein großzügiger Eingangsbereich, Zugang zum Lift und der Stiege, Büro inkl. Bad-WC, Garderobe, Technikraum und eine Doppelgarage.

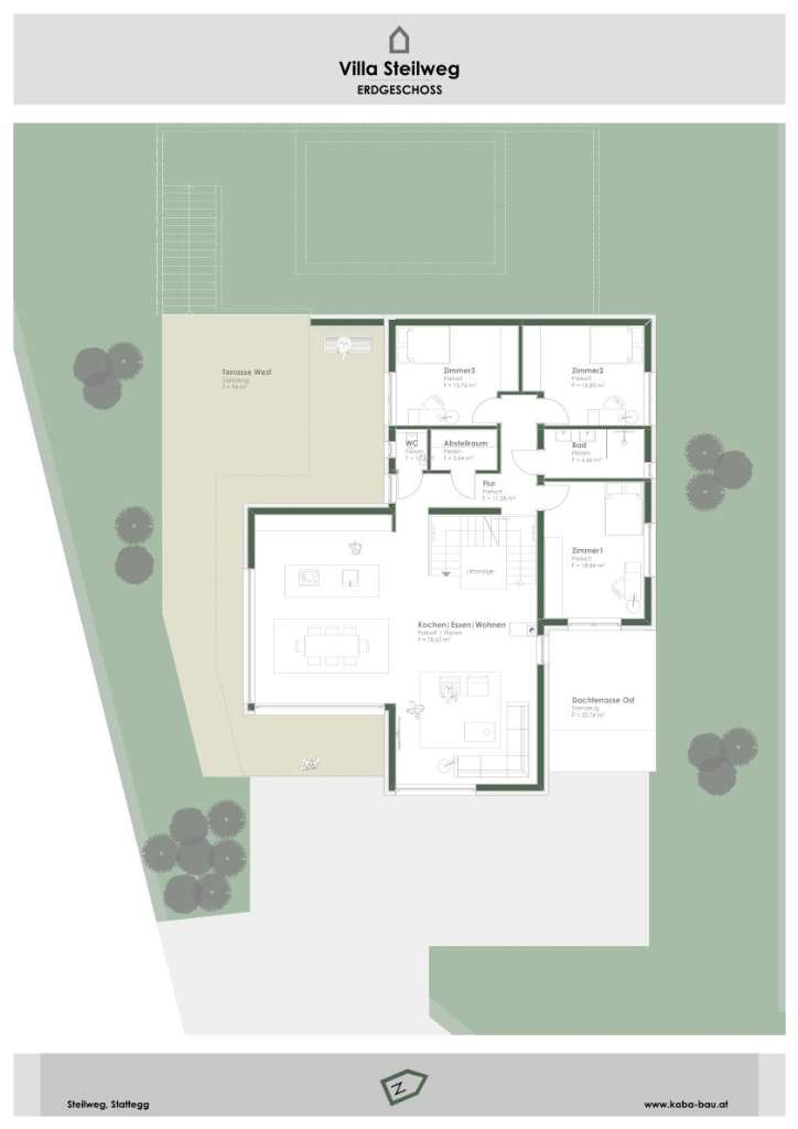
Erdgeschoss:

Auf dieser Ebene befinden sich, ein rund 80 m² großer lichtdurchfluteter Wohn-Essbereich mit einem unverbaubaren Fernblick und einem Zugang zu einer 94 m² großen Süd-West Terrasse über welche man auch auf die Dachterrasse gelangt. Ein Kamin für die kalten Wintertage, 3 geräumige Zimmer, Abstellraum, Badezimmer und ein WC.

Obergeschoss:

Als Penthouse ausgeführt, mit der Idee ein Rückzugsort nur für die Eltern zu schaffen. Genießen Sie beim Aufwachen den Blick aus dem Fenster auf Ihren eigenen grünen Rückzugsort oder den malerischen Ausblick auf die umliegende Landschaft. Die harmonische Verbindung zur Natur verleiht den beiden Räumen eine besondere Atmosphäre der Ruhe und Gelassenheit. Das großzügige Badezimmer mit einer freistehenden Badewanne, einer beidseitig begehbaren Walk-In-Dusche sowie einer Sauna runden den Wohlfühlfaktor ab.

Dachterrasse:

Eine Dachterrasse mit über 220 m² auf welcher sich auch der Pool befindet, bietet Ihnen eine einzigartige Möglichkeit den Ausblick und die Schönheit der Natur zu genießen.

Ausstattungsmerkmale:

  • 313 m² Wohnnutzfläche
  • 7-Zimmer
  • Raumhöhe 2,80 m
  • 94 m² Terrasse im EG
  • 224 m² Dachterrasse mit Ganztagssonne
  • Pool beheizt
  • Glas – Lift
  • Doppelgarage
  • PV-Anlage
  • Luftwärmepumpe
  • Klimaanalage
  • Fußbodenheizung
  • Dielenparkett
  • Feinsteinzeug Großformat
  • Marken Fenster mit 3fach Verglasung
  • Raffstores elektrisch
  • Badezimmer – Walk-In-Dusche
  • Badewanne freistehend
  • Sauna
  • Mehrere zusätzliche PKW-Stellplätze

Art:

Aktuell, Einfamilienhaus – Villa

Ort:

Graz Umgebung

Größe:

313

Fertigstellung:

2025

IN PLANUNG

  • Alle
Villa ST15
Aktuell, Einfamilienhaus – Villa
2025
Villa ST15
Aktuell, Einfamilienhaus – Villa
2025
Wohnanlage KR69
Aktuell, Wohnanlage mit 4 Wohneinheiten
2023
Wohnanlage KR69
Aktuell, Wohnanlage mit 4 Wohneinheiten
2023

WEITERE KABA PROJEKTE + REFERENZEN

  • Alle
Einfamilienhaus – Andritz
Einfamilienhaus
2025
Einfamilienhaus – Andritz
Einfamilienhaus
2025
Einfamilienhaus BA
Einfamilienhaus
2021
Einfamilienhaus BA
Einfamilienhaus
2021
Einfamilienhaus BE
Einfamilienhaus
2021
Einfamilienhaus BE
Einfamilienhaus
2021
Einfamilienhaus WP
Einfamilienhaus
2021
Einfamilienhaus WP
Einfamilienhaus
2021
Wohnanlage U92-U92a
Wohnanlage mit 6 Wohneinheiten
2021
Wohnanlage U92-U92a
Wohnanlage mit 6 Wohneinheiten
2021
Einfamilienhaus – St. Peter
Einfamilienhaus
2024
Einfamilienhaus – St. Peter
Einfamilienhaus
2024